Dự án nhà ở xã hội Happy Home Phố Hiến là dự án tâm điểm, mang sứ mệnh kiến tạo không gian sống chất lượng cao, hiện đại với mức giá vô cùng hợp lý dành cho người dân có thu nhập trung bình và thấp tại tỉnh Hưng Yên. Tọa lạc tại vị trí đắc địa thuộc phường phố Hiến, TP. Hưng Yên. Cùng manhcuongbds tìm hiểu thông tin chi tiết dự án qua bài viết này nhé.
Mục lục
- 1 TỔNG QUAN DỰ ÁN NHÀ Ở XÃ HỘI HAPPY HOME PHỐ HIẾN HƯNG YÊN
- 2 VỊ TRÍ DỰ ÁN NHÀ Ở XÃ HỘI HAPPY HOME PHỐ HIẾN Ở ĐÂU?
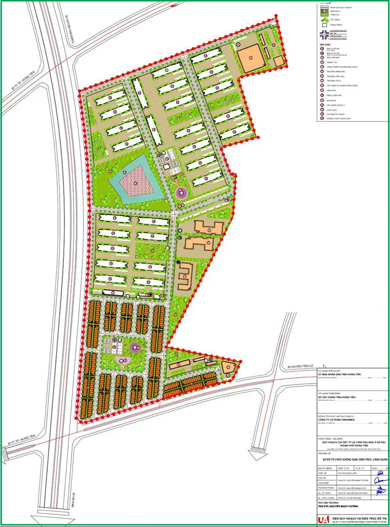
- 3 MẶT BẰNG THIẾT KẾ DỰ ÁN NHÀ Ở XÃ HỘI HAPPY HOME PHỐ HIẾN
- 4 TIỆN ÍCH DỰ ÁN NHÀ Ở XÃ HỘI HAPPY HOME PHỐ HIẾN
- 5 TIẾN ĐỘ THI CÔNG DỰ ÁN NHÀ Ở XÃ HỘI HAPPY HOME PHỐ HIẾN
- 6 GIÁ BÁN, TIẾN ĐỘ THANH TOÁN DỰ ÁN NHÀ Ở XÃ HỘI HAPPY HOME PHỐ HIẾN
- 7 HỒ SƠ MUA DỰ ÁN NHÀ Ở XÃ HỘI HAPPY HOME PHỐ HIẾN GỒM NHỮNG GÌ?
- 8 THÔNG TIN LIÊN HỆ TƯ VẤN HỒ SƠ
TỔNG QUAN DỰ ÁN NHÀ Ở XÃ HỘI HAPPY HOME PHỐ HIẾN HƯNG YÊN
Dự án nhà ở xã hội Happy Home Phố Hiến không chỉ là một dự án nhà ở mà còn là tâm huyết kiến tạo nên một cộng đồng cư dân văn minh, hiện đại tại trung tâm thành phố Hưng Yên. Với mục tiêu mang đến không gian sống chất lượng cao, đầy đủ tiện nghi với mức giá hợp lý, dự án nhanh chóng trở thành tâm điểm thu hút sự quan tâm của khách hàng có nhu cầu ở thực tại khu vực.
| Tên dự án | Khu nhà ở xã hội tại phường Phố Hiến, tỉnh Hưng Yên. |
| Tên thương mại | Happy Home Phố Hiến |
| Chủ đầu tư | Vinhomes |
| Vị trí | phường Phố Hiến, TP. Hưng Yên, Tỉnh Hưng Yên |
| Diện tích đất quy hoạch | Khoảng 31,5ha |
| Mật độ xây dựng | Khoảng 35% |
| Sản phẩm | Căn hộ chung cư, Nhà liền kề (Shophouse) |
| Hình thức sở hữu | Sổ hồng/Sổ đỏ lâu dài. |
Dưới sự đầu tư kỹ lưỡng, dự án sở hữu hệ thống tiện ích nội khu đa dạng (công viên cây xanh, khu vui chơi, shophouse thương mại) cùng thiết kế căn hộ thông minh, tối ưu hóa công năng và ánh sáng tự nhiên. NOXH Happy Home Phố Hiến chính là giải pháp an cư lý tưởng, nơi bạn và gia đình có thể tận hưởng cuộc sống trọn vẹn, an lành với pháp lý minh bạch và chính sách hỗ trợ vay vốn ưu đãi từ nhà nước.
Đây không chỉ là nơi để ở, mà còn là bước đệm vững chắc cho một tương lai tươi sáng và bền vững tại Phố Hiến lịch sử. Happy Home Phố Hiến không chỉ nổi bật về mặt vị trí trung tâm, dễ dàng kết nối với các khu công nghiệp trọng điểm và tiện ích hành chính – thương mại, mà còn được quy hoạch đồng bộ như một khu đô thị thu nhỏ.
VỊ TRÍ DỰ ÁN NHÀ Ở XÃ HỘI HAPPY HOME PHỐ HIẾN Ở ĐÂU?
Nhà ở xã hội Happy Home Phố Hiến Hưng Yên tọa lạc tại một vị trí được đánh giá là trung tâm và chiến lược của thành phố Hưng Yên. Vị trí này không chỉ mang lại sự thuận tiện trong giao thông mà còn thừa hưởng trọn vẹn hệ thống tiện ích sẵn có của một khu vực phát triển sầm uất.
Lợi thế vị trí đắc địa
- Trung tâm kết nối: Dự án nằm ngay cửa ngõ giao thương, dễ dàng kết nối với các tuyến đường huyết mạch của thành phố và tỉnh Hưng Yên, điển hình như Quốc lộ 39A và đường Lê Thanh Nghị, giúp cư dân di chuyển nhanh chóng đến các khu công nghiệp (KCN Phố Nối, KCN Thăng Long II) và trung tâm hành chính.
- Tiếp giáp khu dân cư hiện hữu: Happy Home Phố Hiến nằm trong khu vực có mật độ dân cư cao, văn minh, đảm bảo môi trường sống an ninh và ổn định.
- Tầm nhìn phát triển: Khu vực dự án tọa lạc đang được đầu tư mạnh mẽ về hạ tầng, hứa hẹn gia tăng giá trị bền vững trong tương lai, đặc biệt là các dự án nhà ở xã hội chất lượng cao.
Liên kết tiện ích khu vực hoàn hảo
Từ vị trí dự án, cư dân chỉ mất vài phút để tiếp cận:
- Giáo dục: Gần các trường học chất lượng cao từ mầm non đến THPT và Đại học (ĐH Chu Văn An, ĐH Sư phạm Kỹ thuật Hưng Yên, …).
- Y tế: Dễ dàng di chuyển đến Bệnh viện Đa khoa tỉnh Hưng Yên, các phòng khám lớn.
- Thương mại & Dịch vụ: Kế cận Chợ Phố Hiến, Trung tâm thương mại, siêu thị lớn, đáp ứng mọi nhu cầu mua sắm và sinh hoạt.
- Hành chính: Thuận tiện kết nối với Tỉnh ủy, UBND Tỉnh, các sở ban ngành quan trọng.
Sự kết hợp giữa vị trí trung tâm và mạng lưới tiện ích dày đặc đã biến nhà ở xã hội Happy Home Phố Hiến thành một chốn an cư lý tưởng, giúp cư dân tiết kiệm thời gian di chuyển và tận hưởng cuộc sống trọn vẹn.
MẶT BẰNG THIẾT KẾ DỰ ÁN NHÀ Ở XÃ HỘI HAPPY HOME PHỐ HIẾN
Dự án nhà ở xã hội Happy Home Phố Hiến được thiết kế dựa trên tiêu chí tối ưu hóa không gian sống, đảm bảo ánh sáng tự nhiên và gió trời, đồng thời tạo ra sự kết nối giữa các thành viên trong gia đình. Dự án cung cấp đa dạng loại hình sản phẩm để phục vụ mọi nhu cầu của người dân.
Căn hộ chung cư:
Các căn hộ tại dự án có thiết kế thông minh, diện tích linh hoạt từ 45m² đến 70m², phù hợp với tiêu chuẩn nhà ở xã hội nhưng vẫn đảm bảo chất lượng căn hộ thương mại:
Căn hộ 1 phòng ngủ (45m² – 50m²): Phù hợp với người độc thân hoặc cặp vợ chồng trẻ. Ưu điểm là chi phí hợp lý, dễ dàng bố trí nội thất, tối ưu công năng.
Căn hộ 2 phòng ngủ (55m² – 70m²): Là lựa chọn lý tưởng cho các gia đình có 1-2 con. Thiết kế vuông vắn, các phòng ngủ đều có cửa sổ lớn, logia rộng rãi giúp phơi đồ và trồng cây xanh, mang lại không gian sống thoáng đãng, dễ chịu.
Nhà liền kề/Shophouse
Khu vực Nhà liền kề/Shophouse được bố trí tại các mặt tiền trục đường chính của dự án, có thiết kế hiện đại, đa chức năng:
- Ưu điểm: Tầng 1 và 2 được thiết kế để kinh doanh hoặc cho thuê mặt bằng, các tầng trên là không gian sinh hoạt riêng tư. Điều này tạo ra nguồn thu nhập ổn định ngay tại nơi ở cho gia chủ.
- Thiết kế: Mặt tiền rộng, kiến trúc hiện đại, đồng bộ, tạo nên một khu phố thương mại sầm uất, góp phần hoàn thiện tiện ích nội khu.
TIỆN ÍCH DỰ ÁN NHÀ Ở XÃ HỘI HAPPY HOME PHỐ HIẾN
Mục tiêu của chủ đầu tư là xây dựng một khu đô thị thu nhỏ, nơi cư dân có thể “sống trọn vẹn” mà không cần đi đâu xa. NƠXH Happy Home Phố Hiến chú trọng vào việc kiến tạo một hệ sinh thái tiện ích nội khu đẳng cấp, bên cạnh việc tận dụng tối đa tiện ích ngoại khu sẵn có.
Tiện ích Nội khu – Nâng tầm chất lượng sống
Dự án được quy hoạch bài bản với hệ thống tiện ích đồng bộ, phục vụ mọi lứa tuổi:
- Công viên Trung tâm và Hồ điều hòa: Là lá phổi xanh của dự án, nơi cư dân có thể tản bộ, tập thể dục, hít thở không khí trong lành.
- Nhà trẻ/Mẫu giáo: Tiện ích giáo dục nội khu giúp các bậc phụ huynh yên tâm về việc học tập của con em mình.
- Khu thể thao đa năng: Bao gồm phòng Gym, Yoga, sân bóng rổ/cầu lông để cư dân rèn luyện sức khỏe.
- Shophouse Thương mại dịch vụ: Đáp ứng nhu cầu mua sắm, ăn uống, và các dịch vụ thiết yếu hàng ngày.
- Hệ thống an ninh 24/7: Đảm bảo an toàn tuyệt đối cho cư dân với camera giám sát, đội ngũ bảo vệ chuyên nghiệp.
Tiện ích Ngoại khu – Thừa hưởng trọn vẹn
Nhờ vị trí đắc địa tại trung tâm TP. Hưng Yên, cư dân Happy Home Phố Hiến được hưởng lợi từ:
- Giao thông thuận tiện: Dễ dàng kết nối với các khu công nghiệp, đảm bảo việc làm cho cư dân.
- Dịch vụ Y tế, Giáo dục, Giải trí đã được phân tích chi tiết ở phần Vị trí.
TIẾN ĐỘ THI CÔNG DỰ ÁN NHÀ Ở XÃ HỘI HAPPY HOME PHỐ HIẾN
Hiện tại, dự án nhà ở xã hội Happy Home Phố Hiến đang được triển khai hoàn thiện hồ sơ pháp lý để chuẩn bị khởi công xây dựng trong thời gian tới. Manhcuongbds sẽ cập nhật thông tin mới nhất để quý khách hàng năm được.
GIÁ BÁN, TIẾN ĐỘ THANH TOÁN DỰ ÁN NHÀ Ở XÃ HỘI HAPPY HOME PHỐ HIẾN
Nhà ở xã hội Happy Home Phố Hiến mang đến một mức giá vô cùng cạnh tranh và hợp lý, phù hợp với thu nhập của đại đa số người lao động và cán bộ công nhân viên chức tại tỉnh Hưng Yên.
- Giá bán: Mức giá niêm yết được kiểm soát chặt chẽ theo quy định của nhà nước về nhà ở xã hội, dự kiến chỉ từ 13 – 16 triệu đồng/m² (chưa bao gồm VAT và kinh phí bảo trì).
- Chính sách hỗ trợ: Khách hàng được hưởng các chính sách ưu đãi đặc biệt dành cho Nhà ở xã hội, bao gồm:
- Hỗ trợ vay vốn Ngân hàng: Tối đa 70% giá trị căn hộ với lãi suất ưu đãi theo quy định của Nhà nước.
- Tiến độ thanh toán linh hoạt: Chia thành nhiều đợt theo tiến độ xây dựng, giúp khách hàng chủ động được tài chính cá nhân.
Đây là cơ hội hiếm có để sở hữu căn hộ chất lượng, pháp lý minh bạch tại trung tâm Hưng Yên với chi phí tối ưu nhất.
HỒ SƠ MUA DỰ ÁN NHÀ Ở XÃ HỘI HAPPY HOME PHỐ HIẾN GỒM NHỮNG GÌ?
Theo quy định của pháp luật, người có mong muốn mua dự án nhà ở xã hội Happy Home Phố Hiến cần phải thuộc đối tượng được hưởng chính sách hỗ trợ sau đây:
Theo quy định mới nhất của pháp luật, người có mong muốn mua nhà ở xã hội cần phải thuộc 1 trong những đối tượng được hưởng chính sách hỗ trợ sau đây:
|
TT |
Đối tượng |
|
1 |
Người có công với cách mạng theo quy định của pháp luật về ưu đãi người có công với cách mạng |
|
2 |
Hộ gia đình nghèo và cận nghèo tại khu vực nông thôn |
|
3 |
Hộ gia đình tại khu vực nông thôn thuộc vùng thường xuyên bị ảnh hưởng bởi thiên tai, biến đổi khí hậu |
|
4 |
Người thu nhập thấp, hộ nghèo, cận nghèo tại khu vực đô thị |
|
5 |
Công nhân, người lao động đang làm việc tại các doanh nghiệp, hợp tác xã, liên hiệp hợp tác xã trong và ngoài khu công nghiệp |
|
6 |
Sĩ quan, hạ sĩ quan, quân nhân chuyên nghiệp; công nhân công an, công chức, viên chức quốc phòng đang phục vụ tại ngũ; người làm công tác cơ yếu hoặc các công tác khác trong tổ chức cơ yếu hưởng lương từ ngân sách nhà nước |
|
7 |
Cán bộ, công chức, viên chức |
|
8 |
Những người đã từng phải trả lại nhà ở công vụ do:
|
|
9 |
Học sinh, sinh viên các học viện, trường đại học, cao đẳng, dạy nghề; học sinh trường dân tộc nội trú công lập được sử dụng nhà ở trong thời gian học tập |
|
10 |
Hộ gia đình, cá nhân thuộc diện bị thu hồi đất và phải giải tỏa, phá dỡ nhà ở theo quy định của pháp luật mà chưa được Nhà nước bồi thường bằng nhà ở, đất ở |
|
11 |
Doanh nghiệp, hợp tác xã, liên hiệp hợp tác xã trong khu công nghiệp |
Điều kiện được mua dự án nhà ở xã hội Happy Home Phố Hiến
Theo Điều 78 Luật Nhà ở 2023 và Điều 30 Nghị định 100/2024/NĐ-CP, để được mua hoặc thuê mua nhà ở xã hội, các đối tượng được nêu tại mục 1 cần phải đáp ứng đủ được 2 điều kiện sau:
Điều kiện về nhà ở
- Chưa có nhà ở thuộc sở hữu của mình tại nơi có dự án đầu tư xây dựng nhà ở xã hội đó.
- Chưa được mua/thuê/thuê mua nhà ở xã hội.
- Chưa được hưởng chính sách hỗ trợ nhà ở dưới mọi hình thức tại tỉnh, thành phố nơi có dự án xây dựng nhà ở xã hội.
- Nếu đã có nhà thuộc sở hữu của mình tại nơi có dự án nhà ở xã hội thì nhà phải có diện tích bình quân đầu người là 15m2 sàn/người.
- Trường hợp là những người đang trong quân đội, công chức, viên chức… thì phải không đang ở nhà công vụ.
Điều kiện về thu nhập
Đối với đối tượng theo thứ tự 4, 5, 7 tại bảng trên:
- Trường hợp còn độc thân: Thu nhập thực nhận hàng tháng không quá 25 triệu đồng/tháng.
- Trường hợp độc thân nuôi con nhỏ: Thu nhập thực nhận hàng tháng không quá 35 triệu đồng/tháng.
- Trường hợp đã kết hôn: Tổng thu nhập thực nhận hàng tháng của cả 02 vợ chồng không quá 50 triệu đồng/tháng.
(Thu nhập được tính theo Bảng tiền công, tiền lương do nơi làm việc xác nhận)
Đối với đối tượng 6 tại bảng trên:
- Trường hợp còn độc thân: Thu nhập thực nhận (bao gồm cả lương và phụ cấp) không quá tổng thu nhập của sỹ quan hàm đại tá.
- Trường hợp đã kết hôn:
– Nếu cả 02 vợ chồng đều thuộc lực lượng vũ trang: Tổng thu nhập (bao gồm cả lương và phụ cấp) thực nhận hàng tháng không quá 02 lần tổng thu nhập của sỹ quan cấp hàm Đại tá.
– Chỉ 01 người thuộc lực lượng vũ trang: Tổng thu nhập thực nhận hàng tháng của 2 vợ chồng không quá 1,5 lần tổng thu nhập của sỹ quan cấp hàm Đại tá (bao gồm cả lương và phụ cấp).
- Trường hợp thuộc hộ nghèo, cận nghèo khu vực đô thị thì phải chứng minh là thuộc hộ nghèo, cận nghèo theo quy định.
- Trường hợp là người lao động không có hợp đồng lao động: Công an phường (xã) đứng ra xác nhận điều kiện thu nhập.
Bài viết trên manhcuongbds đã giới thiệu đến quý khách thông tin và cách làm hồ sơ để mua căn hộ tại dự án nhà ở xã hội Happy Home Phố Hiến. Thông tin chỉ mang tính chất tham khảo manhcuongbds không chịu trách nhiệm nếu quý khách hàng tự ý áp dụng mà không được tư vấn trực tiếp.
THÔNG TIN LIÊN HỆ TƯ VẤN HỒ SƠ
- Địa chỉ:phường Phố Hiến, TP. Hưng Yên, Tỉnh Hưng Yên.
- Hotline:0988-818-101 (zalo/messenger)
- Website:https://manhcuongbds.com/du-an-nha-o-xa-hoi-happy-home-pho-hien/
Xem thêm dự án khác cùng khu vực:





























