Tổng công ty Đầu tư và Phát triển nhà Hà Nội (HANDICO) vừa họp và đã phê duyệt kế hoạch lựa chọn nhà thầu chuẩn bị đầu tư dự án nhà ở xã hội X2 Trần Phú, quận Hoàng Mai, TP. Hà Nội. Đây chính là thông tin tích cực khi vừa qua UBND Thành phố tháo gỡ vướng mắc thủ tục xây dựng và đầu tư nhà ở xã hội trên địa bàn. Cùng manhcuongbds tìm hiểu thông tin chi tiết dự án qua bài viết này nhé.
Mục lục
- 1 Tổng quan dự án nhà ở xã hội X2 Trần Phú Hoàng Mai
- 2 Vị trí dự án nhà ở xã hội X2 Trần Phú ở đâu?
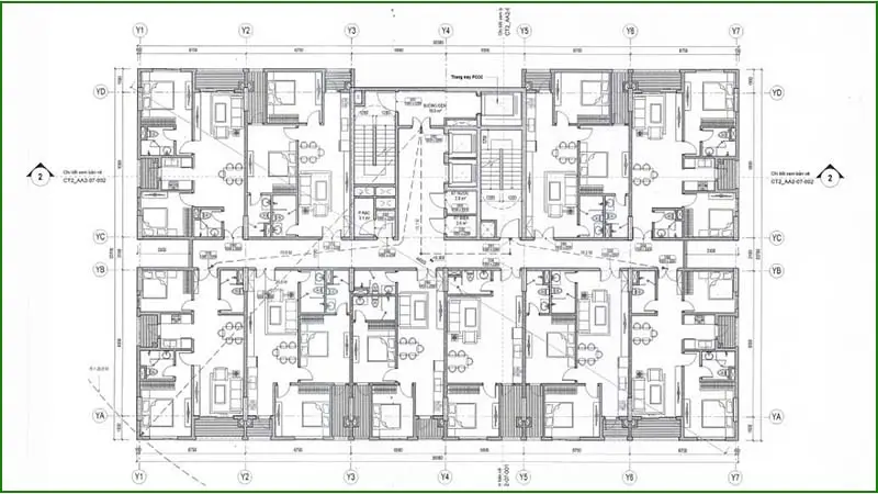
- 3 Mặt bằng thiết kế dự án nhà ở xã hội X2 Trần Phú Hoàng Mai
- 4 Tiện ích tại dự án nhà ở xã hội X2 Trần Phú
- 5 Giá bán & tiến độ thi công dự án nhà ở xã hội X2 Trần Phú
- 6 Hồ sơ mua nhà ở xã hội X2 Trần Phú gồm những gì?
- 7 Thông tin liên hệ dự án nhà ở xã hội X2 Trần Phú
Tổng quan dự án nhà ở xã hội X2 Trần Phú Hoàng Mai
Nhà ở xã hội X2 Trần Phú là tổ hợp căn hộ chung cư, nhà ở xã hội và dịch vụ thương mại được đầu tư xây dựng tại tại km 1.5 Pháp Vân, Phường Trần Phú, Quận Hoàng Mai, TP Hà Nội. Là một vị trí chiến lược ngay cửa ngõ phía Nam Hà Nội, chỉ cách Hồ Hoàn Kiếm 6km và Khu Phố cổ 25 phút đi xe. Dự án được quy hoạch với 3 tòa chung cư cao 17 tầng nổi, 02 tầng hầm, trên diện tích 15.394m2. Dự án có tổng 540 căn hộ và đang thực hiện thủ tục quyết định chủ trương đầu tư, dự kiến hoàn thành năm 2027.
• Tên dự án: Nhà ở xã hội X2 Trần Phú
• Vị trí: Điểm X2 (km 1.5 Pháp Vân), Phường Trần Phú, Quận Hoàng Mai, TP Hà Nội.
• Chủ đầu tư: Tổng Công ty Đầu tư và phát triển nhà Hà Nội
• Tư vấn thiết kế: Tổng Công ty Tư vấn xây dựng Việt Nam – CTCP
• Diện tích khu đất nghiên cứu: 15.394m2
• Diện tích nằm trong chỉ giới đường đỏ: 236m2
• Diện tích đất lập dự án: 15.161m2
• Diện tích đất giao thông: 3.359m2
• Diện tích đất xây dựng công trình nhà ở: 10.292m2
• Diện tích đất xây dựng nhà trẻ (Dự án riêng): 1.510m2
• Diện tích đất giao thông đấu nối với đường gom vành đai 3: 512m2
• Tổng diện tích sàn xây dựng: 65.428m2 (không bao gồm nhà trẻ)
• Tổng số căn hộ: 540 căn
• Toà CT1 – Nhà ở thương mại
– Quy mô: 17 tầng nổi, 03 tầng hầm
– Tổng diện tích sàn xây dựng không bao gồm tầng hầm: 31.052m2
– Tổng số căn hộ: 240 căn
• Toà CT2 – Nhà ở xã hội
– Quy mô: 17 tầng nổi, 02 tầng hầm
– Tổng diện tích sàn xây dựng không bao gồm tầng hầm: 14.464m2
– Tổng số căn hộ: 150 căn
• Toà CT3 – Nhà ở thương mại phục vụ tái định cư
– Quy mô: 17 tầng nổi, 02 tầng hầm
– Tổng diện tích sàn xây dựng không bao gồm tầng hầm: 19.912m2
– Tổng số căn hộ: 150 căn
• Quy mô dân số: 1.550 người
• Hình thức sở hữu: Sổ hồng vĩnh viễn.
Vị trí dự án nhà ở xã hội X2 Trần Phú ở đâu?
Nhà ở xã hội X2 Phường Trần Phú sở hữu vị trí đắc địa, trên địa bàn hành chính phường Trần Phú, quận Hoàng Mai. Chỉ cách trung tâm phố cổ Hoàn Kiếm 8km, Dễ dàng kết nối với khu hành chính phía nam và phía tây qua tuyến đường vành đai 3 trên cao. Kết nối với phía Đông Bắc thủ đô là quận Long Biên và Gia Lâm, khu vực tỉnh thành lân cận qua cầu Thanh Trì, cao tốc Hà Nội- Hải Phòng, Hà Nội – Lạng Sơn…
Từ dự án noxh X2 Trần Phú quý khách có thể dễ dàng kết nối với Quốc lộ 1A và 1B để vào Hà Nội, cũng như từ phía Nam Hà Nội hướng đi Miền Trung Việt Nam, Thành Phố Hồ Chí Minh, đường Vành Đai 3 mới xây dựng, cầu Thanh Trì và đường Vành Đai 4 trong tương lai. Để kết nối quốc tế, từ Nhà ở xã hội X2 Trần Phú bạn có thể dễ dàng đi đến sân bay Nội Bài, Cảng Hải Phòng và Khu Ngoại Giao Đoàn Hồ Tây qua đường Vành đai 3.
Mặt bằng thiết kế dự án nhà ở xã hội X2 Trần Phú Hoàng Mai
Với phương châm “Xây nhà cho khách phải giống như xây nhà cho mình”, Chủ đầu tư Dự án X2 Trần Phú đã rất chú trọng lựa chọn đối tác tư vấn thiết kế, nhà thầu thi công và đơn vị giám sát uy tín hàng đầu. Ngoài ra, vật liệu sử dụng cho công trình cũng đều được kiểm định nghiêm ngặt, đảm bảo sự tiện dụng và tối tân nhất, mang đến không gian sống chất lượng cho cư dân.
Mỗi chi tiết nội thất tại căn hộ X2 Trần Phú đều toát lên vẻ thanh lịch, sang trọng đúng chất, để gia chủ có thể trải nghiệm đẳng cấp sống đỉnh cao trong từng centimet. Hơn thế, toàn bộ quang cảnh thành phố sôi động sẽ tràn vào nhà qua tầm nhìn paronama không giới hạn, cả thủ đô hoa lệ đều được thu trọn vào tầm mắt của chủ nhân.
Dự án X2 Trần Phú là dự án nhà ở xã hội nổi bật với những ưu thế về vị trí, thiết kế, tiện ích dành cho cư dân và một không gian sống xanh, trong lành, gần gũi với thiên nhiên. Không chỉ yên tâm về chất lượng công trình cũng như không gian sống lý tưởng, khách hàng chọn mua căn hộ tại đây còn được hưởng giá bán và những chính sách ưu đãi vô cùng hấp dẫn.
Với định hướng “Xây nhà ở xã hội chất lượng – khẳng định thương hiệu uy tín”, Chủ đầu tư Tổng Công Ty ĐT&PT Nhà Hà Nội (Handico ) đã rất chú trọng lựa chọn đối tác từ khâu tư vấn thiết kế kiến trúc, đơn vị nhà thầu thi công và đơn vị tư vấn giám sát uy tín hàng đầu.
Ngoài ra, vật liệu sử dụng cho dự án cũng đều được kiểm tra kỹ lượng, không gian căn hộ được tối ưu về công năng. Các phòng khách và khu bếp được liên thông tạo cảm giác thông thoáng, phòng ngủ có cửa sổ lớn đảm bảo tất cả các phòng đều có ánh sáng.
Toàn bộ căn hộ tại Chung cư X2 Trần Phú được thiết kế với thiết kế ưu việt để đáp ứng toàn bộ nhu cầu nghỉ ngơi tươi mát của khách hàng, đảm báo đưa đến 100% lượng không khí tươi ráo vào trong từng căn hộ của bạn. Đặc biệt hơn nữa là cách bố trí hệ thống bế sát với lô gia để tạo ra sự thông thoáng cho bếp và căn hộ của gia chủ.
Với những thiết kế hiện đại, áp dụng các tiêu chuẩn kiểu mẫu cho những căn hộ tại chung cư X2 Trần Phú người mua nhà có thể hoàn toàn yên tâm về không gian sống, việc vận dụng các yếu tố phong thuỷ vào trong từng thiết kế với chủ đạo các căn hộ đều lấy cảm hừng “Chạm tay vào Nắng và Gió” kết hợp tinh tế với thiên nhiên, mang thiên nhiên vào từng căn hộ nhưng vẫn giữ được sự sang trọng và đẳng cấp.
Tiện ích tại dự án nhà ở xã hội X2 Trần Phú
Dự án chung cư noxh X2 Trần Phú thừa hưởng hệ thống tiện ích khu vực đã hoàn thiện toàn bộ, đó là khu đô thị Gamuda Garden, khu công viên hồ Yên Sở với nhiều khu vui chơi, cây xanh cùng với các dãy Shophose quy tụ nhiều nhà hàng ăn uống, trung tâm mua sắm, giải trí.

Nhà ở xã hội X2 Trần Phú với hệ thống vườn cây xanh, vườn hoa phủ kín dự án, những con đường đi dạo nội khu, sẽ giúp cư dân có những giây phút thư thái sau mỗi ngày làm việc mệt mỏi. Bên cạnh đó, hệ thống trung tâm thương mại sẽ hỗ trợ tối đa các nhu cầu của cư dân – mà không cần phải ra khỏi khu nhà, và đặc biệt, tại dự án chủ đầu tư còn xây dựng công trình chợ dân sinh – để thuận tiện cho các hộ cư dân mong muốn mua sắm theo phương thức truyền thống.
Với phương châm đem đến cho khách hàng một cuộc sống thoải mái và tiện nghi, các nhà làm dự án X2 Trần Phú không những chú trọng đặc biệt đến thiết kế các căn hộ cho phù hợp với phong thủy mà còn đem đến cho các khách hàng của mình một cuộc sống đầy đủ ngay chính tại nơi đây mà không phải đi bất cứ đâu như: mua sắm, giải trí, chăm sóc sức khỏe, làm đẹp, tập luyện thể thao… Các tiện ích ngay tại dự án giúp bạn tiết kiệm nhiều thời gian, công sức và tiền bạc sẽ nâng tầm cuộc sống cho bạn.
Tại chung cư X2 Trần Phú, cư dân sẽ được hưởng một cuộc sống tiện nghi và thuận tiện với hệ thống an toàn, hệ thống thang máy chở người và hàng hóa riêng biệt nhằm đảm bảo lưu lượng di chuyển của cư dân vào giờ cao điểm, hệ thống an ninh đồng bộ, camera giám sát 24/24, máy phát điện dự phòng khởi động sau 15 giây khi xảy ra sự cố, tầng hầm để xe rộng rãi đáp ứng nhu cầu đi lại của cho cư dân.
Cư dân sinh sống tại chung cư – Nhà ở xã hội X2 Trần Phú được thừa hưởng đầy đủ tiện ích vui chơi giải trí, mua sắm, y tế và giáo dục của quận điểm của thành phố Hà Nội. Bên cạnh đó, chủ đầu tư đặc biệt chú trọng phát triển tiện ích sinh thái đa dạng, kết hợp hài hòa ứng dụng chăm sóc sức khỏe trong thiết kế cảnh quan, không gian sống và áp dụng các giải pháp tiết kiệm năng lượng và sử dụng năng lượng tái tạo cho cư dân.
Giá bán & tiến độ thi công dự án nhà ở xã hội X2 Trần Phú
Giá bán nhà ở xã hội X2 Trần Phú: dự kiến mở bán khoảng 20 triệu/m2, giá bán sẽ được sở xây dựng Hà Nội quyết định phê duyệt và công bố chính thức khi mở bán hồ sơ.
Tiến độ xây dựng: Đang triển khai hoàn thiện giấy tờ và chuẩn bị thi công, đã hoàn thành các văn bản pháp lý cần thiết theo quy định của nhà nước. Manhcuongbds sẽ cập nhật thường xuyên khi có thông tin mới.
Hồ sơ mua nhà ở xã hội X2 Trần Phú gồm những gì?
Căn cứ Điều 76 và khoản 1 Điều 77 Luật Nhà ở 2023, các đối tượng sau đây nếu đáp ứng điều kiện theo quy định (điều kiện được trình bày ở mục sau) thì được hưởng chính sách hỗ trợ:
|
TT |
Đối tượng |
|
1 |
Người có công với cách mạng theo quy định của pháp luật về ưu đãi người có công với cách mạng |
|
2 |
Hộ gia đình nghèo và cận nghèo tại khu vực nông thôn |
|
3 |
Hộ gia đình tại khu vực nông thôn thuộc vùng thường xuyên bị ảnh hưởng bởi thiên tai, biến đổi khí hậu |
|
4 |
Người thu nhập thấp, hộ nghèo, cận nghèo tại khu vực đô thị |
|
5 |
Công nhân, người lao động đang làm việc tại các doanh nghiệp, hợp tác xã, liên hiệp hợp tác xã trong và ngoài khu công nghiệp |
|
6 |
Sĩ quan, hạ sĩ quan, quân nhân chuyên nghiệp; công nhân công an, công chức, viên chức quốc phòng đang phục vụ tại ngũ; người làm công tác cơ yếu hoặc các công tác khác trong tổ chức cơ yếu hưởng lương từ ngân sách nhà nước |
|
7 |
Cán bộ, công chức, viên chức |
|
8 |
Những người đã từng phải trả lại nhà ở công vụ do:
|
|
9 |
Học sinh, sinh viên các học viện, trường đại học, cao đẳng, dạy nghề; học sinh trường dân tộc nội trú công lập được sử dụng nhà ở trong thời gian học tập |
|
10 |
Hộ gia đình, cá nhân thuộc diện bị thu hồi đất và phải giải tỏa, phá dỡ nhà ở theo quy định của pháp luật mà chưa được Nhà nước bồi thường bằng nhà ở, đất ở |
|
11 |
Doanh nghiệp, hợp tác xã, liên hiệp hợp tác xã trong khu công nghiệp |
Điều kiện được mua nhà ở xã hội theo luật sửa đổi mới nhất 2024
Theo Điều 78 Luật Nhà ở 2023 và Điều 30 Nghị định 100/2024/NĐ-CP, để được mua hoặc thuê mua nhà ở xã hội, các đối tượng được nêu tại mục 1 cần phải đáp ứng đủ được 2 điều kiện sau:
Điều kiện về nhà ở
- Chưa có nhà ở thuộc sở hữu của mình tại nơi có dự án đầu tư xây dựng nhà ở xã hội đó.
- Chưa được mua/thuê/thuê mua nhà ở xã hội.
- Chưa được hưởng chính sách hỗ trợ nhà ở dưới mọi hình thức tại tỉnh, thành phố nơi có dự án xây dựng nhà ở xã hội.
- Nếu đã có nhà thuộc sở hữu của mình tại nơi có dự án nhà ở xã hội thì nhà phải có diện tích bình quân đầu người là 15m2 sàn/người.
- Trường hợp là những người đang trong quân đội, công chức, viên chức… thì phải không đang ở nhà công vụ.–
Điều kiện về thu nhập
Đối với đối tượng theo thứ tự 4, 5, 7 tại bảng trên:
- Trường hợp còn độc thân: Thu nhập thực nhận hàng tháng không quá 15 triệu đồng/tháng.
- Trường hợp đã kết hôn: Tổng thu nhập thực nhận hàng tháng của cả 02 vợ chồng không quá 30 triệu đồng/tháng.
(Thu nhập được tính theo Bảng tiền công, tiền lương do nơi làm việc xác nhận)
Đối với đối tượng 6 tại bảng trên:
- Trường hợp còn độc thân: Thu nhập thực nhận (bao gồm cả lương và phụ cấp) không quá tổng thu nhập của sỹ quan hàm đại tá.
- Trường hợp đã kết hôn:
– Nếu cả 02 vợ chồng đều thuộc lực lượng vũ trang: Tổng thu nhập (bao gồm cả lương và phụ cấp) thực nhận hàng tháng không quá 02 lần tổng thu nhập của sỹ quan cấp hàm Đại tá.
– Chỉ 01 người thuộc lực lượng vũ trang: Tổng thu nhập thực nhận hàng tháng của 2 vợ chồng không quá 1,5 lần tổng thu nhập của sỹ quan cấp hàm Đại tá (bao gồm cả lương và phụ cấp).
- Trường hợp thuộc hộ nghèo, cận nghèo khu vực đô thị thì phải chứng minh là thuộc hộ nghèo, cận nghèo theo quy định.
- Trường hợp là người lao động không có hợp đồng lao động: UBND xã đứng ra xác nhận điều kiện thu nhập.
Thông tin liên hệ dự án nhà ở xã hội X2 Trần Phú
- Địa chỉ: Điểm X2 (km 1.5 Pháp Vân), Phường Trần Phú, Quận Hoàng Mai, TP Hà Nội.
- Hotline:0988-818-101 (Call/zalo/messenger)
- Website:https://manhcuongbds.com/nha-o-xa-hoi-x2-tran-phu/
Bài viết trên manhcuongbds đã giới thiệu đến bạn đọc thông tin chi tiết về dự án nhà ở xã hội X2 Trần Phú. Thông tin chỉ mang tính chất tham khảo manhcuongbds không chịu trách nhiệm khi quý khách tự ý áp dụng mà không được tư vấn trực tiếp.
Xem thêm dự án khác cùng khu vực:
- DỰ ÁN NHÀ Ở XÃ HỘI 4-6-8 VĨNH HƯNG – HOÀNG MAI, HÀ NỘI
- DỰ ÁN NHÀ Ở XÃ HỘI 393 LĨNH NAM – HOÀNG MAI, HÀ NỘI
- DỰ ÁN NHÀ Ở XÃ HỘI NGÕ 218 LĨNH NAM – HOÀNG MAI, HÀ NỘI
- DỰ ÁN NHÀ Ở XÃ HỘI HỒNG HÀ ECO CITY – TỨ HIỆP, THANH TRÌ
- DỰ ÁN NHÀ Ở XÃ HỘI 486 NGỌC HỒI – THANH TRÌ, HÀ NỘI
- DỰ ÁN NHÀ Ở XÃ HỘI SUNRISE HOME NGỌC HỒI, THANH TRÌ
- DỰ ÁN NHÀ Ở XÃ HỘI HACINCO ĐẠI KIM – HOÀNG MAI, HÀ NỘI
- DỰ ÁN NHÀ Ở XÃ HỘI UDIC ECOTOWER 214 NGUYỄN XIỂN – N01 HẠ ĐÌNH
- DỰ ÁN CHUNG CƯ NHÀ Ở XÃ HỘI CT6B TÂY NAM KIM GIANG
- DỰ ÁN NHÀ Ở XÃ HỘI VIWASEEN HẠ ĐÌNH – THANH XUÂN, HÀ NỘI
- DỰ ÁN NHÀ Ở XÃ HỘI NO-01 LINH ĐÀM – HOÀNG MAI, HÀ NỘI
- DỰ ÁN NHÀ Ở XÃ HỘI GREEN TOWER ĐẠI MỖ – NAM TỪ LIÊM, HÀ NỘI
- DỰ ÁN NHÀ Ở XÃ HỘI RICE CITY TỐ HỮU – NAM TỪ LIÊM, HÀ NỘI
- NHÀ Ở XÃ HỘI NHS TRUNG VĂN – NAM TỪ LIÊM, HÀ NỘI
- DỰ ÁN NHÓM NHÀ Ở TÂY NAM MỄ TRÌ – NAM TỪ LIÊM
- DỰ ÁN NHÀ Ở XÃ HỘI PHƯỜNG NGỌC THUỴ – LONG BIÊN, HÀ NỘI
- DỰ ÁN NHÀ Ở XÃ HỘI IEC BẢO NGỌC CITY THẠCH BÀN – LONG BIÊN, HÀ NỘI
- DỰ ÁN NHÀ Ở XÃ HỘI RICE CITY THẠCH BÀN – LONG BIÊN, HÀ NỘI
- DỰ ÁN NHÀ Ở XÃ HỘI HIM LAM THƯỢNG THANH – LONG BIÊN, HÀ NỘI
- DỰ ÁN NHÀ Ở XÃ HỘI HIM LAM PHÚC LỢI – LONG BIÊN, HÀ NỘI
- DỰ ÁN NHÀ Ở XÃ HỘI VINHOMES HAPPY HOME PHỐ HIẾN – HƯNG YÊN


























